單晶硅變送器包括表壓、差壓、絕對壓力、高靜壓差壓等多個品種。
單晶硅壓力變送器廣泛應用于石油、化工、電力、冶金、水務、釀造等工業領域。長期以來,昌暉儀表制造有限公司以產品的卓越品質和優質的售后服務,贏得了用戶一致的好評。

■ 運輸
在校驗之后,儀器被包裝在紙箱(GB/T13384-2008)中以保護免遭損傷。
■ 儲藏
儲藏儀器無需任何特殊處理。對儲藏期沒有限制,但保質期仍按公司規定的期限一致。
■ 產品標識
產品銘牌標識包括序列號、量程、精度等級、輸入電壓、輸出、出廠日期等相關信息。
重要:查詢時務必提供儀表序列號。
■ 壓力(絕壓)變送器工作原理
■ 差壓變送器工作原理

警告:為了確保操作員以及工廠的安全,務必由經過培訓的人員按照型號的技術數據進行安裝!
■ 安裝
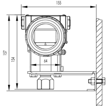
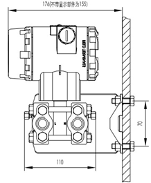
變送器顯示殼體可以相對傳感器旋轉約360°,而不影響性能和內部配線。不要強制旋轉傳感器部分,用2mm六角扳手來松開或鎖定緊定螺釘。這樣可對電子線路連接和輸出液晶表頭影響量達到最小。安裝如下圖所示:

單晶硅壓力變送器管道安裝

單晶硅變送器墻面安裝

單晶硅差壓變送器管道安裝
為了正確安裝單晶硅壓力變送器,必須遵循以下幾點:
1、 引壓管道盡可能短,并避免急彎折。
2、 引壓管道的安裝坡度不應小于1:12,以免引起沉淀。
3、 引壓管道在連接到變送器前,必須用壓縮空氣吹一遍,最好用被測介質沖洗一遍。
4、 如果介質是液體,則應徹底放空引壓管道。
5、 引壓管道的布局,應使得被測液體中的氣泡或被測氣體中的沉淀物能回流到過程管道中。
6、 安裝過程管道時,不得有任何泄露。
警告:對于危險場所(即具有火災與爆炸危險區域)的安裝,在進行電器連接之前,確保符合安全標志牌上的安全注意事項。否則可能造成火災核爆炸。
■ 電氣連接
進行電氣安裝時,必須遵循有關指導規程!
由于變送器不帶電源開關,所以系統必須配置過電流保護或電源切斷裝置。
檢查工作電壓是否和銘牌上規定的一致。電源和輸出信號共享一根兩芯屏蔽電纜。電氣連接可通過NPT1/2或M20×1.5電纜入口與接線端子連接。導線連接端子可接截面積為2.5mm2以下導線。

電氣連接圖
可以通過PC機或筆記本電腦經調制解調器對變送器進行操作。調制解調器可以并聯到信號回路的任意處。變送器于調制解調器是通過疊加在4-20mA輸出信號上的交流信號進行通信的。次調制不改變平均值,因此不影響測量信號。調制解調器和電源裝置之間的電阻必須不小于250Ω。若按標準安裝不能達到此值,則需附加一電阻。
■ 使用
安裝好單晶硅壓力變送器后,接通電源即可投入運行。
? 通電前必須檢查以下各項:
——過程連接
——電器連接
——變送器的引壓管及測量腔體充滿介質。
? 投入運行,應按以下步驟操作截止閥。
1、 若有截止閥,打開截止閥,接通壓力;
2、 打開三閥組上的平衡閥(此項僅適用差壓變送器,壓力變送器無此項);
3、 打開正腔截止閥;
4、 關閉平衡閥(此項僅適用于差壓變送器,壓力變送器無此項);
5、 打開負腔截止閥(此項僅適用于差壓變送器,壓力變送器無此項);
? 若要退出運行變送器,則按相反的步驟操作。
? 變送器輸出范圍:
如所測壓力在銘牌所標的范圍內,則輸出電流信號在4-20mA。如果壓力低于標定的測量范圍,輸出信號在3.9-4.0mA之間,如果壓力高于標定的測量范圍,輸出信號在20-20.5mA之間。輸出信號極限:Imin=3.9mA,Imax=20.5mA。
報警電流模式可設置,低報模式(最小)為3.7 mA,高報模式(最大)為21mA,不報模式(保持)為保持故障前的有效電流值,變送器出廠標準設置為高報模式。
? 零位校正
安裝單晶硅變送器時,可能會出現安裝引起的零位偏移(如安裝位置傾斜、差壓變送器水平位置不一致、及環境溫度影響)此時必須校正零位偏移。
帶有按鈕控制單元的變送器進行零點校正時,變送器必須達到其工作溫度(約通電5分鐘),具體方法詳見下一章節(菜單操作)。
單晶硅壓力變送器的外部控制按鈕位于銘牌背后。如需使用,松開銘牌螺絲并旋轉90度;完成校驗程序后安裝相反程序固定。圖示如下就地按鈕:

圖6 就地按鈕
? 零位和量程校驗
校驗智能變送器可以采用下面幾種方法:
1、 變送器輔助單元中的就地“按鈕”按鍵。
2、 使用手操器。
3、 使用PC組態軟件。
本說明書在“菜單操作”章節詳細介紹第一種方法;其他方法在隨后章節或有關組態工具說明書中說明。
■ 菜單操作
帶液晶表頭時,可通過變送器頂部的“Z鍵”和“S”按鍵對變送器進行如下組態。
注:以下液晶顯示表頭顯示的菜單項,分別顯示在液晶表頭的第一行或第二行。如下圖所示液晶表頭(圖7)和菜單結構樹(圖8):
? 退出菜單(EXIT)
? 查看測量值和計算值(VIEW)
? 加壓設定0%(GET 0%)
? 加壓設定100%(GET 100%)
? 輸入數值設定0%(SET 0%)
? 輸入數值設定100%(SET 100%)
? 零位校正(SHIFT ZERO)
? 平行遷移(OFFSET SHIFT)
? 阻尼(DAMPING)
? 顯示類型選擇(DISPLAY)
? 單位選擇(UNIT)
? 輸出特性選擇(FUNCTION)

圖7 液晶顯示表頭
圖8 菜單結構樹
操作說明:
1、按鍵定義
針對就地按鈕“Zero”和“Span”,有以下三種組合的按鍵定義:
1.1 “確認”鍵:同時按下按鈕“Zero”和“Span”,保持0.2秒后再全部松開;每執行一次該操作,就輸入了一次“確認”鍵;
1.2 “左”鍵:按下按鈕“Span”,保持0.2秒后再松開;每執行一次該操作,就輸入了一次“左”鍵;
1.3 “右”鍵:按下按鈕“Zero”,保持0.2秒后再松開;每執行一次該操作,就輸入了一次“右”鍵。
提示:在操作就地按鈕時,推薦使用無磁性材料工具,否則有可能導致單鍵按下無效果、或單鍵按下產生雙鍵按下的效果的情況發生。
2、菜單啟動與退出
2.1 在菜單未被啟動的狀態下,輸入一次“確認”鍵,則菜單被啟動,顯示如圖9所示:
3.菜單瀏覽
菜單啟動后,可通過輸入“左”鍵和“右”鍵來瀏覽菜單。
3.1 “左”鍵為從下向上循環顯示菜單樹中的各菜單項,在如圖9所示的情況下,輸入一次“左”鍵,顯示器顯示如圖10所示;再輸入一次“左”鍵,顯示器顯示如圖11所示。


3.2 “右”鍵為從上向下循環顯示菜單樹中的各菜單項,在如圖9所示的情況下,輸入一次“右”鍵,顯示器顯示如圖12所示;再輸入一次“右”鍵,顯示器顯示如圖13所示。


4、菜單選擇
在菜單瀏覽時,輸入一次“確認”鍵,則程序會執行該菜單對應的功能。
5、數據輸入
用戶在通過菜單進行儀表參數設置時,可以有兩種方式進行數據輸入:
5.1 數據選擇
舉例說明:假設當前單位是“kPa”、菜單未啟動,現在要將單位改為“bar”,可按下列步驟進行:
5.1.1 輸入一次“確認”鍵(啟動菜單),顯示器顯示如圖9所示;
5.1.2 輸入二次“左”鍵或十次“右”鍵(菜單瀏覽),顯示器顯示如圖11所示;
5.1.3 輸入一次“確認”鍵(菜單選擇),則程序進入單位設置功能,顯示如圖14所示:


5.1.4 輸入五次“左”鍵或九次“右鍵”(數據選擇),顯示器顯示如圖16所示;
5.1.5 輸入一次“確認”鍵(數據輸入),程序將單位更改為“bar”,并顯示提示信息,顯示器顯示如圖17所示;


5.1.6 輸入一次“確認”鍵,清除提示信息,程序返回到菜單瀏覽狀態,顯示如圖11所示;
5.1.7 輸入十次“左”鍵或二次“右”鍵(菜單瀏覽),顯示器顯示如圖9所示;
5.1.8 輸入一次“確認”鍵,退出菜單功能,菜單返回未啟動狀態。
此時,可以觀察到單位已變為“bar”。
5.2 數據編輯
舉例說明:假設當前阻尼值為0.1s,菜單未啟動,現在要將阻尼值改為1.0s,可按下列步驟進行:
5.2.1 輸入一次“確認”鍵(啟動菜單),顯示器顯示如圖9所示;
5.2.2 輸入四次“左”鍵或八次“右”鍵(菜單瀏覽),顯示器顯示如圖18所示;


5.2.3 輸入一次“確認”鍵(菜單選擇),顯示器顯示如圖19所示;
5.2.4 輸入一次“左”鍵或“右”鍵,進入數據編輯狀態,此時在阻尼值單位“s”上方的字符“0”上出現閃爍的光標。
光標閃爍:光標出現時,顯示器顯示如圖20所示;光標消失時,仍顯示原來的字符;

光標移動:進入數據編輯狀態后,每輸入一次“左”鍵,光標將向左移動一位,如果此位是小數點,則光標自動再左移一位;如果已經是最左邊一位,則光標移動到最右邊一位;
數值翻轉:進入數據編輯狀態后,每輸入一次“右”鍵,光標處的數字將加1,即“0”變成“1”,“1”變成“2”等等,特殊的變化有“9”變成“0”,空格符“ ”變成“1”,“+”變成“-”,“-”變成“+”;
5.2.5 輸入二次“左”鍵,將光標移動到字符“1”上;
5.2.6 輸入九次“右”鍵,將光標處的字符“1”翻轉成“0”;
5.2.7 輸入一次“左”鍵,將光標移動到小數點左邊第一個字符“0”上;
提示:移動光標時,光標將自動跳過小數點。
5.2.8 輸入一次“右”鍵,將光標處的字符“0”翻轉成“1”,顯示器顯示如圖21所示;
5.2.9 輸入一次“確認”鍵(數據輸入),程序將阻尼值改為1.0s,并顯示提示信息,顯示器顯示如圖17所示;如果輸入數據值超出了程序允許的范圍,程序將提示錯誤,顯示器顯示如圖22所示。此時,需要再輸入一次“確認”鍵,清除錯誤提示信息,程序重新回到菜單瀏覽狀態,顯示器顯示如圖18所示。


5.2.10 輸入一次“確認”鍵,清除提示信息,程序返回到菜單瀏覽狀態,顯示器顯示如圖18所示;
5.2.11 輸入八次“左”鍵或四次“右”鍵(菜單瀏覽),顯示器顯示如圖9所示;
5.2.12 輸入一次“確認”鍵,退出菜單功能,菜單返回未啟動狀態。
操作指南
1、菜單啟動與退出
1.1 在菜單未被啟動的狀態下,輸入一次“確認”鍵,則菜單被啟動,顯示器顯示如圖9所示;
1.2 在圖9所示狀態下,輸入一次“確認”鍵,則退出菜單,菜單返回未啟動狀態。
2.變量查看
2.1 啟動菜單;
2.2 通過菜單瀏覽,選中“ VIEW”菜單,顯示器顯示如圖12所示;
2.3 輸入一次“確認”鍵,進入變量查看功能。此時將顯示第一個變量“當前壓力/差壓值”、工程單位及變量序號,顯示器顯示如圖23所示(假設此時的工程單位為“kPa”);

提示:“*******”表示不確定的壓力/差壓值。
2.4 輸入一次“右”鍵,顯示第二個變量“當前壓力/差壓值相對于量程的百分比值”、百分號“%”及變量序號,顯示器顯示如圖24所示;

提示:“*******”表示不確定的壓力/差壓值的量程百分比值。
2.5 輸入一次“右”鍵,顯示第三個變量“輸出電流值”、單位“mA”及變量序號,顯示器顯示如圖25所示;

提示:“*******”表示不確定的輸出電流值。
2.6 輸入一次“右”鍵,則又顯示第一個變量,顯示器顯示如圖23所示;
2.7 如果依次輸入“左”鍵,則逆序顯示第一、第二、第三變量。
2.8 輸入一次“確認”鍵,返回菜單瀏覽狀態,顯示器顯示如圖12所示。
提示:在“ VIEW”菜單功能中,“左”鍵與“右”鍵的功能與菜單瀏覽類似。
3.模擬量程加壓零位遷移
舉例說明:假設有一安裝在工程現場的差壓變送器,其傳感器量程上限為40 kPa,模擬量程為0-20 kPa;實際工作時,在管道差壓為0-20kPa時,顯示器顯示為0.1-20.1kPa,輸出電流為4.08-20.08mA。
要求:顯示器顯示不變,輸出電流值改為4~20mA。
操作步驟如下:
3.1 使管道差壓為0kPa,此時顯示器顯示為+0.1kPa;
3.2 啟動菜單,通過菜單瀏覽,選中“GET 0%”菜單,顯示器顯示如圖13所示;
3.3 輸入一次“確認”鍵,程序將模擬量程改為0.1-20.1 kPa,并顯示提示信息,顯示器顯示如圖17所示;
3.4 輸入一次“確認”鍵,清除提示信息,程序返回到菜單瀏覽狀態,表頭顯示如圖14所示。
3.5 利用“ VIEW”菜單,可以查看到此時第一變量為0.1kPa,第三變量為4mA;
3.6 使管道差壓為20kPa;
3.7 利用“ VIEW”菜單,可以查看到此時第一變量為20.1kPa,第三變量為20mA;
3.8 退出菜單,操作完成。
4、模擬量程加壓滿位設定
舉例說明:假設有一安裝在工程現場的差壓變送器,其傳感器量程上限為40kPa,模擬量程為0-40 kPa;實際工作時,在管道差壓為0-20kPa時,顯示器顯示為0-20kPa,輸出電流為4-12mA。
要求:顯示器顯示不變,輸出電流值改為4-20mA。
操作步驟如下:
4.1 使管道差壓為20kPa,此時顯示器顯示為+20kPa;
4.2 啟動菜單,通過菜單瀏覽,選中“GET100%”菜單,顯示器顯示如圖26所示;
4.3 輸入一次“確認”鍵,程序將模擬量程改為0~20kPa,并顯示提示信息,顯示器顯示如圖17所示;
4.4 輸入一次“確認”鍵,清除提示信息,程序返回到菜單瀏覽狀態,表頭顯示如圖26所示。
4.5 利用“ VIEW”菜單,可以查看到此時第一變量為20kPa,第三變量為20mA;
4.6 使管道差壓為0kPa;
4.7 利用“ VIEW”菜單,可以查看到此時第一變量為0kPa,第三變量為4mA;
4.8 退出菜單,操作完成。

5.模擬量程零位設定
舉例說明:假設有一安裝在工程現場的差壓變送器,其傳感器量程上限為40kPa,模擬量程為0-20kPa;實際工作時,在管道差壓為 -4~20kPa時,顯示器顯示為 -4~20kPa,輸出電流為3.9-20mA。
要求:顯示器顯示不變,輸出電流值改為4~20mA。
操作步驟如下:
5.1 啟動菜單,通過菜單瀏覽,選中“ SET 0%”菜單,顯示器顯示如圖27所示;
5.2 輸入一次“確認”鍵,顯示器顯示模擬量程下限值0kPa,如圖28所示;


5.3 輸入一次“左”或“右”鍵,進入數據編輯狀態,顯示器上出現閃爍的光標;
5.4 輸入三次“左”鍵,將光標移動到小數點左邊第一個字符“0”上;
5.5 輸入四次“右”鍵,將字符“0”翻轉成“4”;
5.6 輸入二次“左”鍵,將光標移動到字符“+”上;
5.7 輸入一次“右”鍵,將字符“+”翻轉成“-”,顯示器顯示如圖29所示;

5.8 輸入一次“確認”鍵,程序將模擬量程下限改為 -4kPa,并顯示圖17所示提示信息;
5.9 輸入一次“確認”鍵,清除提示信息,程序返回到菜單瀏覽狀態,表頭顯示如圖27所示。
5.10 使管道差壓為 -4kPa;
5.11 利用“ VIEW”菜單,可以查看到此時第一變量為 -4kPa,第三變量為4mA;
5.12 使管道差壓為20kPa;
5.13 利用“ VIEW”菜單,可以查看到此時第一變量為20kPa,第三變量為20mA;
5.14 退出菜單,操作完成。
6、模擬量程滿位設定
舉例說明:假設有一安裝在工程現場的差壓變送器,其傳感器量程上限為40 kPa,模擬量程為0~40 kPa;實際工作時,在管道差壓為0~20kPa時,顯示器顯示為0~20kPa,輸出電流為4~12mA。
要求:顯示器顯示不變,輸出電流值改為4~20mA。
操作步驟如下:
6.1 啟動菜單,通過菜單瀏覽,選中“SET100%”菜單,顯示器顯示如圖30所示;
6.2 輸入一次“確認”鍵,顯示器顯示模擬量程上限值40kPa,如圖31所示;


6.3 輸入一次“左”或“右”鍵,進入數據編輯狀態,顯示器上出現閃爍的光標;
6.4 輸入四次“左”鍵,將光標移動到字符“4”上;
6.5 輸入八次“右”鍵,將字符“4”翻轉成“2”,顯示器顯示如圖32所示;

6.6 輸入一次“確認”鍵,程序將模擬量程上限改為20kPa,并顯示圖17所示提示信息;
6.7 輸入一次“確認”鍵,清除提示信息,程序返回到菜單瀏覽狀態,表頭顯示如圖30所示。
6.8 使管道差壓為0kPa;
6.9 利用“ VIEW”菜單,可以查看到此時第一變量為0kPa,第三變量為4mA;
6.10 使管道差壓為20kPa;
6.11 利用“ VIEW”菜單,可以查看到此時第一變量為20kPa,第三變量為20mA;
6.12 退出菜單,操作完成。
7、數字零點調整
舉例說明:假設有一安裝在工程現場的差壓變送器,其傳感器量程上限為40 kPa,模擬量程為0~20 kPa;實際工作時,在管道差壓為0~20kPa時,顯示器顯示為0.1~20.1kPa,輸出電流為4.08~20.08mA。
要求:顯示器顯示改為0~20kPa,輸出電流值改為4~20mA。
操作步驟如下:
7.1 使管道差壓為0kPa,此時顯示器顯示為+0.1kPa;
7.2 啟動菜單,通過菜單瀏覽,選中“ SHIFT”“ ZERO”菜單,顯示器顯示如圖33所示;

7.3 輸入一次“確認”鍵,程序修改數字零點值,并顯示提示信息,如圖17所示;
7.4 輸入一次“確認”鍵,清除提示信息,程序返回到菜單瀏覽狀態,顯示器顯示如圖33所示。
7.5 利用“ VIEW”菜單,可以查看到此時第一變量為0kPa,第三變量為4mA;
7.6 使管道差壓為20kPa;
7.7 利用“ VIEW”菜單,可以查看到此時第一變量為20kPa,第三變量為20mA;
7.8 退出菜單,操作完成。
8、模擬量程平行遷移
舉例說明:假設有一安裝在工程現場的差壓變送器,其傳感器量程上限為40 kPa,模擬量程為0~40 kPa;實際工作時,在管道差壓為-20~20kPa時,顯示器顯示為-20~20kPa,輸出電流為3.9~12mA。
要求:顯示器顯示不變,輸出電流值改為4~20mA。
操作步驟如下:
8.1 使管道差壓為0kPa,此時顯示器顯示為0kPa;
8.2 啟動菜單,通過菜單瀏覽,選中“ OFFSET”“ SHIFT”菜單,顯示器顯示如圖34所示;
8.3 輸入一次“確認”鍵,顯示器上顯示當前壓力/差壓的量程百分比值+0.00%,如圖35所示;


8.4 輸入一次“左”或“右”鍵,進入數據編輯狀態,顯示器上出現閃爍的光標;
8.5 輸入三次“左”鍵,將光標移動到小數點左邊第一個空字符“□”上;
8.6 輸入五次“右”鍵,將空字符“□”翻轉成“5”,顯示器顯示如圖36所示

8.7 輸入一次“確認”鍵,程序將對模擬量程進行平行遷移,即同時修改模擬量程上限值和下限值,且修改量相等,方向相同。修改是按照下列公式進行的:
1) 量程差=量程上限–量程下限=40–0=40kPa
2) 修改量的百分比值=遷移后的百分比值–遷移前的百分比值=50.00%-0.00%=50.00%
3) 修改量=量程差×修改量的百分比值=40×50.00%=20kPa
4) 遷移后的量程上限=原量程上限–修改量=40–20=20kPa
5) 遷移后的量程下限=原量程下限–修改量=0–20=-20kPa
同時,顯示器顯示提示信息,如圖17所示;
8.8 輸入一次“確認”鍵,清除提示信息,程序返回到菜單瀏覽狀態,表頭顯示如圖34所示。
8.9 利用“ VIEW”菜單,可以查看到此時第一變量為0kPa,第三變量為12mA;
8.10 使管道差壓為20kPa;
8.11 利用“ VIEW”菜單,可以查看到此時第一變量為20kPa,第三變量為20mA;
8.12 使管道差壓為 -20kPa;
8.13 利用“ VIEW”菜單,可以查看到此時第一變量為 -20kPa,第三變量為4mA;
8.14 利用“ SET 0%”菜單,可以查看到此時的量程下限已變成 –20 kPa;
8.15 利用“SET100%”菜單,可以查看到此時的量程上限已變成 +20 kPa;
8.16 退出菜單,操作完成。
9.阻尼設定
請參見“二、操作說明?5. 數據輸入?5.2 數據編輯”。
提示:有效的阻尼值范圍是0.1s ~ 16s。如果輸入參數超出了這個范圍,程序不接受參數修改,并在顯示器上顯示錯誤信息,如圖22所示。
10.顯示類型選擇
在菜單未啟動時,顯示器只顯示“ VIEW”菜單中介紹的三個變量中的一個,可通過“DISPLAY”菜單進行選擇設置。
舉例說明:假設當前顯示類型為第二變量“壓力/差壓值的量程百分比值”。
要求:將顯示類型改為第一變量“壓力/差壓值”。
操作步驟如下:
10.1 啟動菜單,通過菜單瀏覽,選中“DISPLAY”菜單,顯示器顯示如圖37所示;

10.2 輸入一次“確認”鍵,顯示器顯示第二變量,如圖24所示;
10.3 輸入一次“左”鍵或二次“右”鍵,顯示器顯示第一變量,如圖23所示;
10.4 輸入一次“確認”鍵,程序將顯示類型改為第一變量,并顯示圖17所示提示信息;
10.5 輸入一次“確認”鍵,清除提示信息,程序返回到菜單瀏覽狀態,顯示如圖37所示。
10.6 退出菜單,可以觀察到當前顯示為第一變量“壓力/差壓值”。
11、單位選擇
請參見“二、操作說明?5. 數據輸入?5.1 數據選擇”。
12、特性函數選擇
特性函數有線性和線性平方根兩種,可以通過“FUNC- ”“ TION”菜單進行選擇設置。
舉例說明:假設當前特性函數為線性。
要求:將特性函數改為線性平方根。
操作步驟如下:
12.1 啟動菜單,通過菜單瀏覽,選中“FUNC- ”“ TION”菜單,顯示器顯示如圖2所示;
12.2 輸入一次“確認”鍵,顯示器顯示當前線性特性函數,如圖38所示;
12.3 輸入一次“左”鍵或一次“右”鍵,顯示器顯示線性平方根特性函數,如圖39所示;


12.4 輸入一次“確認”鍵,程序將特性函數改為線性平方根,并顯示圖17所示提示信息;
12.5 輸入一次“確認”鍵,清除提示信息,程序返回到菜單瀏覽狀態,顯示器顯示如圖10所示。
12.6 退出菜單,可以觀察到當前特性函數已被改為線性平方根,顯示器顯示如圖40所示;特性函數為線性時,顯示器顯示如圖41所示。


提示:“*”表示不確定的顯示。
■ 維護
根據現場工作條件,參照上一節定期檢查儀表輸出信號。在正常情況下儀表也可能會有殘留沉積物,故應根據現場應用條件定期對變送器進行清洗,清洗工作最好在室內進行。操作如下:
1、將過程法蘭的螺釘按對角方向松開;
2、小心取下法蘭,注意不要傷到傳感器隔離膜片;
3、用軟毛刷和合適的溶劑清洗傳感器膜片,可以連同法蘭一起清洗;
4、更換過程法蘭的O型圈;
5、將過程法蘭裝到測量部件上,應小心不要碰到隔離膜片;(兩個過程法蘭的斷面必須保持在同一個平面,與表殼保持正確角度)。
6、用扭力扳手以對角方向擰緊螺栓、螺母,檢查是否有泄露。
■ 修理
在整個使用使用過程中都必須遵循有關安全規定,只有在清洗、檢查、修理、更換失效件時才能拆開變送器。傳感器只能由制造商修理。失效的變送器應送回昌暉儀表制造有限公司修理,如有可能請說明故障和原因。
